LAGE LAGE LAGE: Gewerbefläche in Binzen! Dreispitz
In Vorbereitung
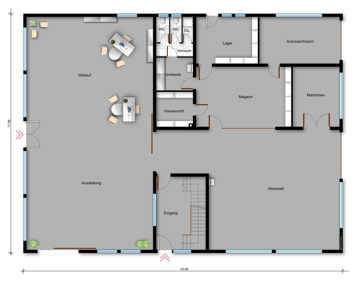
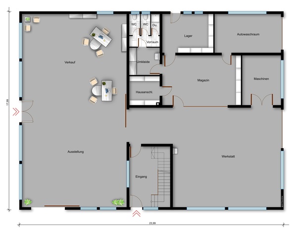
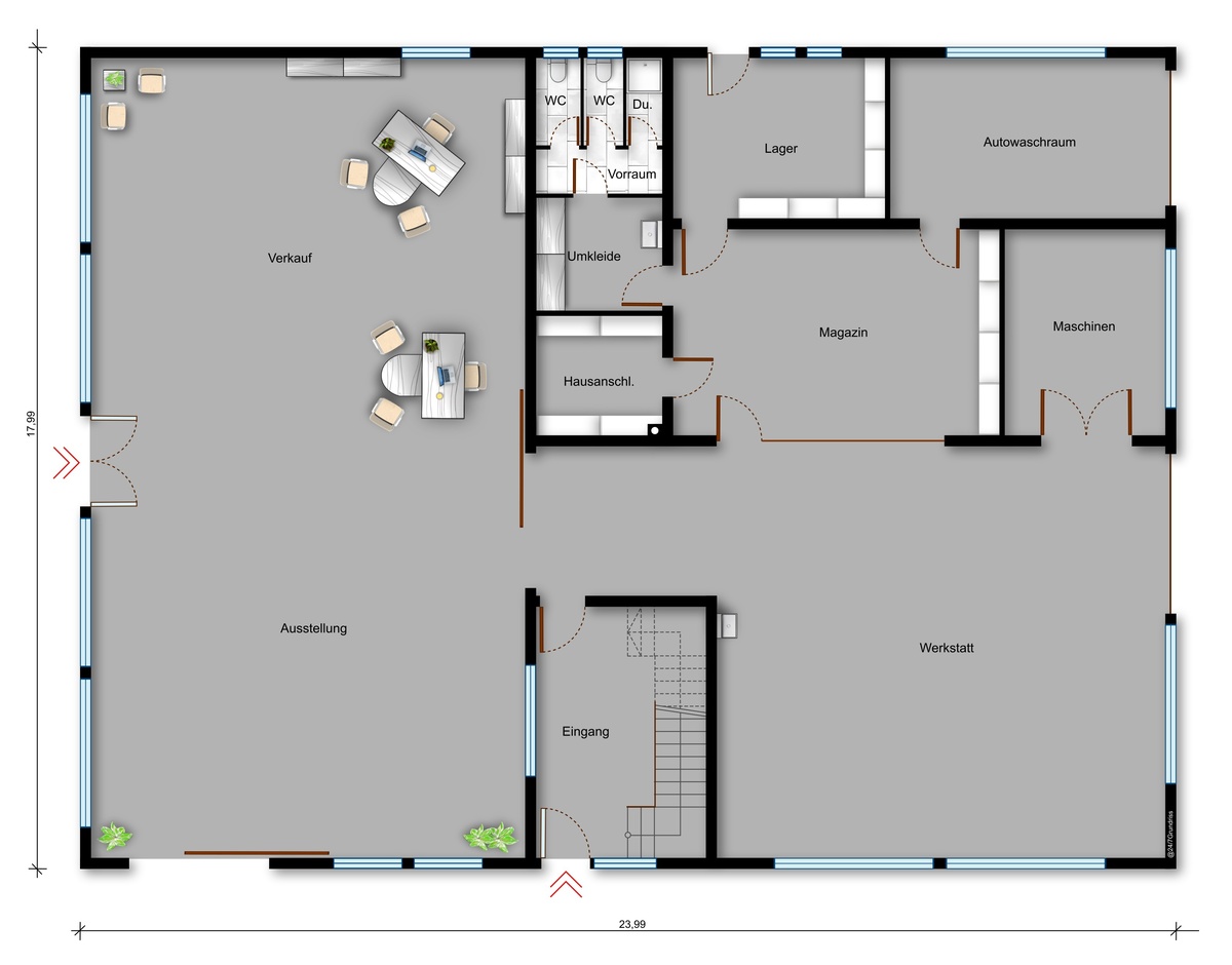
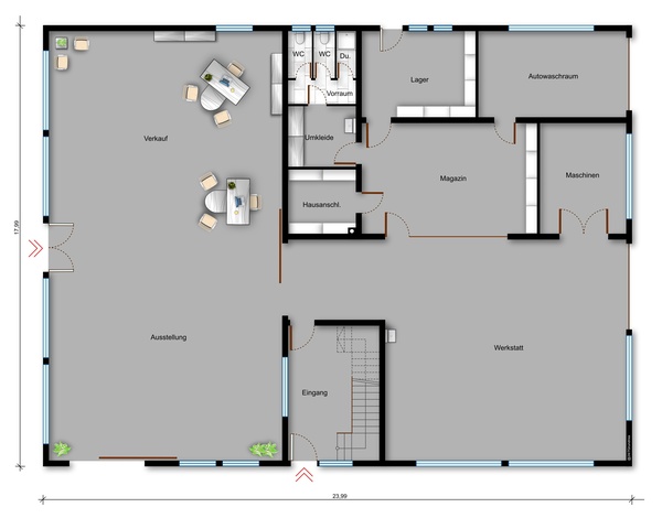
Es können auch nur Teilflächen angemietet werden.
Es können auch nur Teilflächen angemietet werden.
| Kalt - Miete | 3.750,00 EUR |
| Miete pro qm / Monat | 10,80 EUR |
| Kaution | 3 Monatsmieten kalt |
| Provision | provisionsfrei |
Downloads
Objekt Informationen
| Nr. | 26BSCHV |
|---|---|
| Typ | Gewerbe |
| Baujahr | 1990 |
| Gewerbefläche | 347 qm |
| Stockwerk | Erdgeschoss |
| Anzahl Zimmer | 6 |
| Anzahl Stellplätze | 5 |
| Separates WC | ja |
| Befeuerung | Gas |
| Energieeffizienz | Energieausweis in Vorbereitung |
