Vermietung auf Zeit: 3,5-Zimmer EG Wohnung
Die Wohnung befindet sich im Erdgeschoss eines ehemaligen Bauernhauses in Schopfheim, im Ortsteil Wiechs.
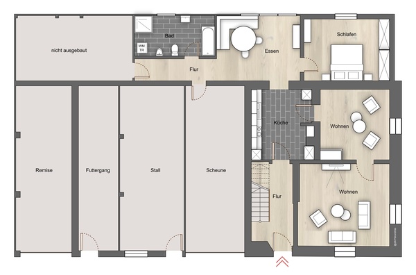
Durch einen Flur kommt man in die geräumige Küche mit Blick ins Esszimmer und wunderschönem Ausblick über die Stadt Schopfheim bis zum Belchen. Aus der Küche rechts gelangt man in ein Durchgangszimmer, von dort in ein weiteres schönes Zimmer mit alten Zierbalken an der Decke, die sofort Gemütlichkeit vermitteln. Vom Esszimmer gelangt man rechts in ein Schlafzimmer mit ebenfalls wunderschönen Ausblick und links durch einen Flur in das großzüge moderne Bad mit Badewanne, ebenerdiger Dusche, Waschbecken mit Unter- und Oberschrank und einem Außenfenster.
Im Mietpreis inbegriffen ist eine einfache, offene Einbauküche. Die Räume können nach Absprache auch möbliert gemietet werden. Der Grundriss lässt sehr viel Freiheit beim Einrichten, so kann man die Räume - je nach Bedarf - als Schlaf-, Kinder- oder Arbeitszimmer, Ankleidezimmer nutzen.
Wohnung wird nur mit einem Zeitmietvertrag vermietet auf 1 Jahr mit der Option der Verlängerung.
Möblierte Vermietung bevorzugt.
Haustiere nach Rücksprache erlaubt.
Kaltmiete 986 € + Nebenkosten 280 € ( bei 1 Person)
Objekt wird warm abgerechnet, keine Nebenkostenabrechnung (Strom ist inkl., nur Abfall muss selbst übernommen werden)
Durch einen Flur kommt man in die geräumige Küche mit Blick ins Esszimmer und wunderschönem Ausblick über die Stadt Schopfheim bis zum Belchen. Aus der Küche rechts gelangt man in ein Durchgangszimmer, von dort in ein weiteres schönes Zimmer mit alten Zierbalken an der Decke, die sofort Gemütlichkeit vermitteln. Vom Esszimmer gelangt man rechts in ein Schlafzimmer mit ebenfalls wunderschönen Ausblick und links durch einen Flur in das großzüge moderne Bad mit Badewanne, ebenerdiger Dusche, Waschbecken mit Unter- und Oberschrank und einem Außenfenster.
Im Mietpreis inbegriffen ist eine einfache, offene Einbauküche. Die Räume können nach Absprache auch möbliert gemietet werden. Der Grundriss lässt sehr viel Freiheit beim Einrichten, so kann man die Räume - je nach Bedarf - als Schlaf-, Kinder- oder Arbeitszimmer, Ankleidezimmer nutzen.
Wohnung wird nur mit einem Zeitmietvertrag vermietet auf 1 Jahr mit der Option der Verlängerung.
Möblierte Vermietung bevorzugt.
Haustiere nach Rücksprache erlaubt.
Kaltmiete 986 € + Nebenkosten 280 € ( bei 1 Person)
Objekt wird warm abgerechnet, keine Nebenkostenabrechnung (Strom ist inkl., nur Abfall muss selbst übernommen werden)
Kalt - Miete | 986,00 EUR |
Nebenkosten | 280,00 EUR |
Kaution | 1.972,00 EUR 2 Monatsmieten kalt |
Provision | provisionsfrei |
Objekt Informationen
Nr. | 25VSWS |
---|---|
Typ | Wohnung |
Baujahr | 1789 (Sanierung 02/2023) |
Wohnfläche | 88 qm |
Stockwerk | Erdgeschoss |
Anzahl Zimmer | 3 |
Anzahl Badezimmer | 1 |
Anzahl Schlafzimmer | 2 |
Anzahl Stellplätze | 1 |
Gartennutzung | ja |
Befeuerung | Gas |
Energieeffizienz | in Vorbereitung |